欢迎来到重庆昌炯生物科技研究有限公司

您当前所在的位置:主页 > 产品中心 > 起重葫芦系列 >
LIFTING HOIST SERIES
起重葫芦系列

大载荷电动小车式环链电动葫芦

大载荷电动小车式环链电动葫芦

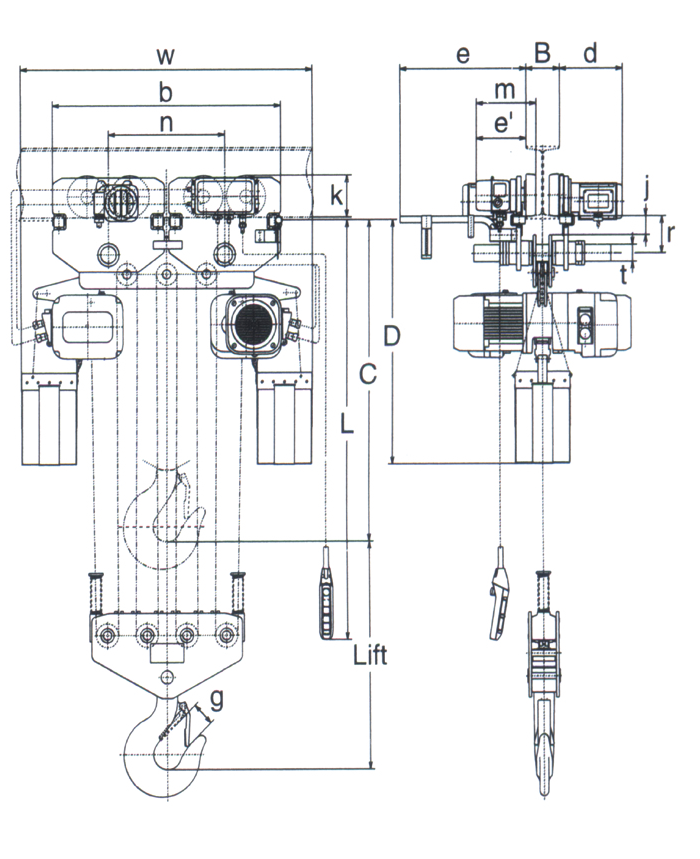
没有配供电电缆。关于供电方式,请于敝公司商量。 扬程(载重链)、按钮控制线、供电电缆的长度如在标准规格以外,请于敝公司商量。 载重链经过热处理,无法拼接使用,请注意。

全国咨询热线:

更多联系方式
-产品详情- -产品参数-
·没有配供电电缆。关于供电方式,请于敝公司商量。
·扬程(载重链)、按钮控制线、供电电缆的长度如在标准规格以外,请于敝公司商量。
·载重链经过热处理,无法拼接使用,请注意。
·帆布制链袋为标准链袋,钢制链袋为选配品。
·操作方法为单轨吊用5点式(上下、横向)按钮。起重机用7点式(上下、横向、纵向)按钮。
·操作电压为24V的低电压。如果选用操作起重机用7点式按钮控制器,请另外选用起重机控制箱。
·按钮控制器标配了紧急停止按钮。按下紧急停止按钮可以方便的切断马达回路。
·在同一轨道上使用多台葫芦时可能造成彼此间冲撞,需要安装缓冲装置。
·2台同时起吊的时候,请按照单侧葫芦的额定载荷能起升负载的要求来选定葫芦。3台同时起吊的时候,请事先与敝公司商量。

产品参数

相关产品

创造客户价值 助力客户成功

重庆昌炯生物科技研究有限公司凭借着高新的技术、优异的品质及良好的服务赢得了客户点赞,在国内外众多企业大放异彩!

COPYRIGHT© 重庆昌炯生物科技研究有限公司 ALL RIGHTS RESERVED